1
/
of
5
Mein Shop
Framex 80
Framex 80
Regular price
0 Ft
Regular price
Sale price
0 Ft
Unit price
/
per
Taxes included.
Shipping calculated at checkout.
Couldn't load pickup availability
Enhance your home or office with our premium doors, combining durability, style, and advanced functionality. Designed with precision, they provide exceptional performance and security.
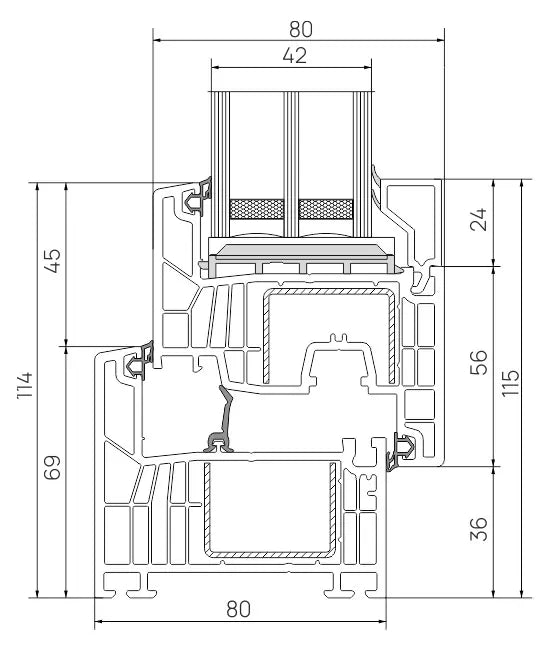
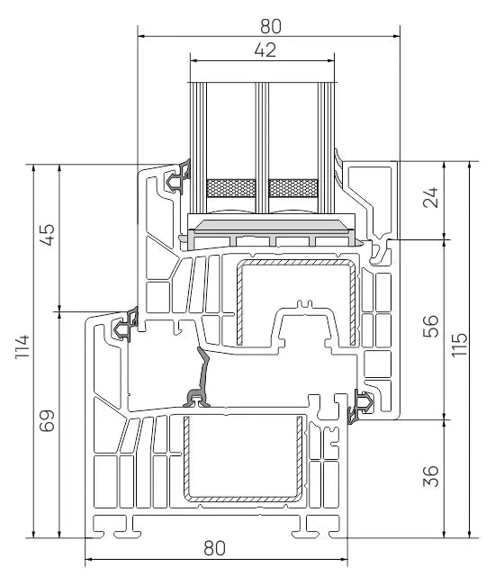
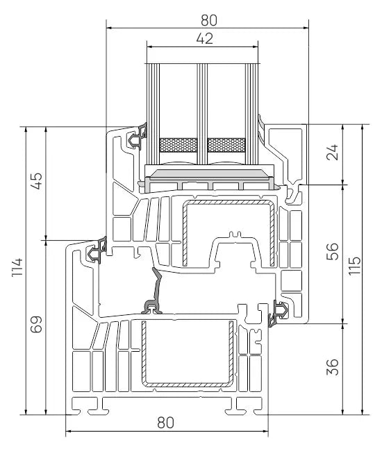
Key Specifications:
- number of profile chambers: 7
- mounting depth: 80mm
- Thermal insulation values (Uf: 1,1W/m²K, Ug: 0,5W/m²K Uw: 0,79W/m²K)
- gasket system: 3-seals
- Glazing: 42, 50mm
- min. dimensions of the construction: 400x400mm
- max. dimensions of the construction: 3000x3000mm
- max. dimensions of the sash: 1600x2400mm
- burglary protection: RC2
Combine style and functionality with doors that ensure top performance, energy efficiency, and reliable security. Perfect for every space!
Share




